Transformation d'un appartement en duplex avec aménagement des combles
Paris 10
Initialement, l'espace sous les combles au dessus d’un petit appartement n'apportait que très peu de mètres carrés habitables, et la hauteur sous plafond à l'étage principal était assez importante. Le plancher des combles est démoli avant de le remplacer par une structure métallique et un plancher partiel, plus bas, augmentant ainsi la superficie et le volume de l'appartement.
Au rez-de-chaussée un ensemble intègre des rangements, une salle de bain, un escalier bibliothèque et la cuisine. À l'étage, la chambre parentale et la pièce bureau/chambre d’enfant sont largement ouverts sur le séjour par des verrières en métal.
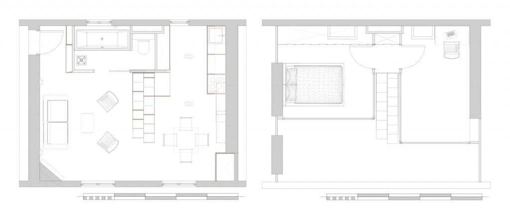
Transformation d'un appartement en duplex avec aménagement des combles
Paris 10
Initialement, l'espace sous les combles au dessus d’un petit appartement n'apportait que très peu de mètres carrés habitables, et la hauteur sous plafond à l'étage principal était assez importante. Le plancher des combles est démoli avant de le remplacer par une structure métallique et un plancher partiel, plus bas, augmentant ainsi la superficie et le volume de l'appartement.
Au rez-de-chaussée un ensemble intègre des rangements, une salle de bain, un escalier bibliothèque et la cuisine. À l'étage, la chambre parentale et la pièce bureau/chambre d’enfant sont largement ouverts sur le séjour par des verrières en métal.
L’escalier à pas japonais en chêne massif a été réalisé sur mesure afin de s’adapter parfaitement à l’espace.
Dans la salle de bain, le mur de pierre de l’immeuble est laissé brut et complété par du carrelage autour des sanitaires.