pm4 . OldXGarden

Surface

80-180m2

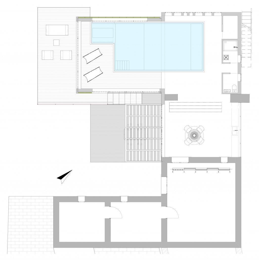
Extension d’une longère avec piscine couverte
Chamigny
150m2

Le client souhaite ajouter une extension contenant une piscine couverte à sa maison, vaste corps de ferme très étiré.
Le volume en longueur se termine vers le jardin par un large auvent rendu à l’intérieur et intégrant une cuisine d’été fermée par de larges baies vitrées. À l’étage, une vaste salle de bain est créée donnant sur une terrasse.

La géométrie de l’existant se prolonge au delà du auvent par le début du volume piscine en rez-de-chaussée et par un deck protégé du soleil par une charpente tendue de stores à l’étage, reprenant la forme de la maison initiale. Un autre volume aux proportions traditionnelles referme l’espace autour d’une cour intérieure que le jardin recouvre de ses plantes, des murs à la toiture. De larges terrasses en bois lient les niveaux créés par la pente du jardin et la maison.

L’extension avec ses murs et toitures végétaux est pensée comme la continuité du jardin venant recouvrir le volume de la piscine.

Ce projet est la rencontre fortuite entre une géométrie traditionnelle , le vide et le jardin.

😉
🙃