pm4 . OpenKitchen

Surface

10-80m2

Rénovation d'un appartement
Paris 15

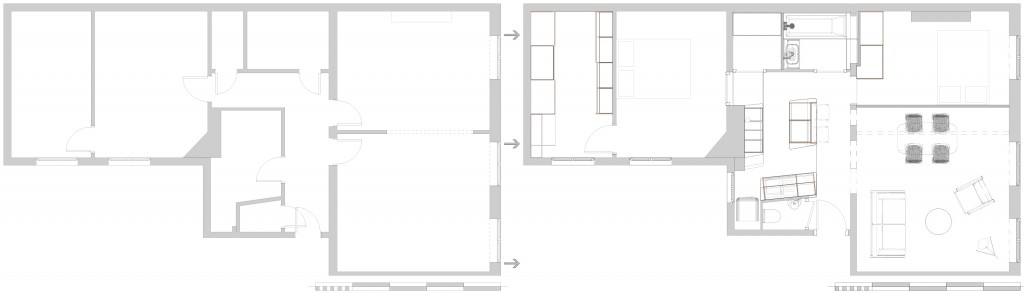
Dans leur appartement typique du début XXème avec son parquet et ses moulures, les clients souhaitent une chambre supplémentaire et de plus grands espaces de vie. Les murs de la cuisine sont abattus et le mur porteur entre séjour et couloir est largement ouvert, réintégrant le couloir et la cuisine dans un grand espace de vie.
Dans la cuisine, l'addition des courbes et des biais en contreplaqué permet d'optimiser l'espace et de proposer une plus grande surface de travail et de rangements dans 4m2 qui vient déborder sur ce qui était le couloir.

Le plafond de la cuisine diffuse la lumière dans l’ensemble de la cuisine et la hotte rétractable éclaire de façon directive.

Les champs du contreplaqué bouleau sont laissées brut et il est recouvert d’une simple feuille de stratifié pour le plan de travail.

😉
🙃