pm4 . tHinCenter

Surface

180m2+

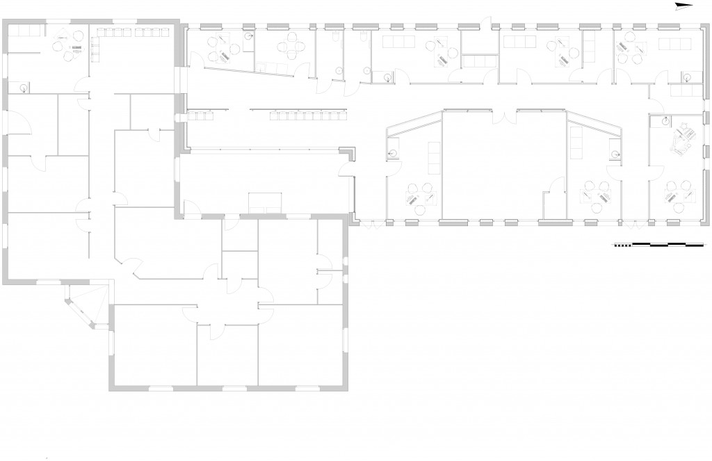
Extension d'un cabinet médical
Bazoches-les-Gallerandes
280m2

Afin d’attirer de nouveaux spécialistes dans un village du Loiret, il faut doubler la surface existante de l’ancien cabinet médical.
La nouvelle extension se compose de cabinets à destination de médecins spécialistes et de kinésithérapeutes, d'une salle d'exercice ainsi que d'une nouvelle salle d'attente.
Le bâtiment tout en longueur s'étend autour d'un patio vers le fond de la parcelle.
Construit en maçonnerie traditionnelle et charpente métallique, il est recouvert d'une toiture végétalisée qui l'intègre discrètement au jardin et le rend quasiment invisible du centre classé du village comme des récents pavillons aux toits à doubles pentes.

Une dérogation au PLU a été demandée pour la toiture végétale afin que le bâtiment puisse se fondre dans la paysage.

Le plan du bâtiment s’organise autour de la salle d’exercice centrale vitrée donnant sur le jardin et sur le couloir intérieur.

😉
🙃