Surface
80-180m2Tags
 
                       
                       
                       
                       
                       
                       
                       
                       
                       
                       
                       
                      Transformation d'ateliers en loft
Paris 18
130m2 au sol, 87m2 Carrez
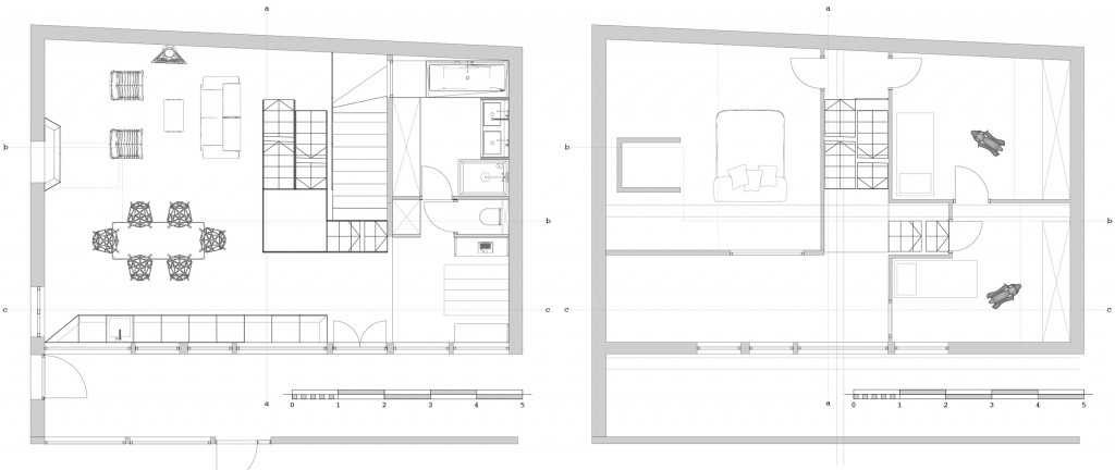
Ces trois ateliers cloisonnés et leur étage étaient anciennement occupés par un imprimeur et un photographe.
L’espace principal recevant peu de lumière directe, la verrière existante permet d’éclairer le rez-de-chaussée tandis qu’une des fenêtres de toit devient un puit de lumière pour éclairer le fond du loft et des fenêtres nouvelles donnant sur le couloir sont créées.
Une grosse poutre traverse l’espace en longueur à partir de 3m50 de hauteur empêchant de passer d’un côté à l’autre de l’étage. Un meuble escalier composé d'une première volée de marches arrivant sur un plateau à mi-hauteur permet de passer sous la poutre. Deux escaliers relient ensuite le niveau supérieur de part et d'autre de la poutre pour desservir d'un côté deux chambres situées dans l'espace existant et de l'autre côté la chambre créée au-dessous de la verrière.
©photos Fabienne Delafraye