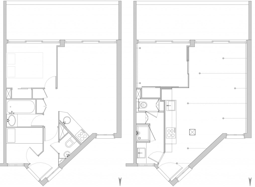
Rénovation d'un appartement de vacances
Villefranche sur Mer
35m2
Situé dans une résidence de vacances, cet appartement de vacances était initialement optimisé pour être le plus rentable possible et permettre à sept personnes d’y coucher.
Il a été redessiné pour un nombre d’habitants proportionnel à sa superficie, soit quatre personnes maximum.
Les nombreuses cloisons qui réduisaient l’espace sont abattues permetant à la chambre de s'ouvrir sur le reste de l’appartement grâce à des parois coulissantes. La salle de bain tout en longueur gagne en superficie et en fonctionnalité et une fenêtre existante lui est redonnée.
Adossé à la salle de bain, la cuisine tout en longueur s’ouvre sur l’espace principal. Les larges baies vitrées donnant sur le balcon sont orientées plein sud vers la rade de Villefranche et ses couleurs chatoyantes. En réaction l'appartement est entièrement blanc, couleur déclinée du sol au plafond en passant par le mobilier et les éclairages, en jouant des nuances du mat au brillant.
Rénovation d'un appartement de vacances
Villefranche sur Mer
35m2
Situé dans une résidence de vacances, cet appartement de vacances était initialement optimisé pour être le plus rentable possible et permettre à sept personnes d’y coucher.
Il a été redessiné pour un nombre d’habitants proportionnel à sa superficie, soit quatre personnes maximum.
Les nombreuses cloisons qui réduisaient l’espace sont abattues permetant à la chambre de s'ouvrir sur le reste de l’appartement grâce à des parois coulissantes. La salle de bain tout en longueur gagne en superficie et en fonctionnalité et une fenêtre existante lui est redonnée.
Adossé à la salle de bain, la cuisine tout en longueur s’ouvre sur l’espace principal. Les larges baies vitrées donnant sur le balcon sont orientées plein sud vers la rade de Villefranche et ses couleurs chatoyantes. En réaction l'appartement est entièrement blanc, couleur déclinée du sol au plafond en passant par le mobilier et les éclairages, en jouant des nuances du mat au brillant.
L'appartement est éclairé de deux manière différentes, une lumière froide et indirecte le long des murs ou de grandes ampoules descendant du plafond et donnant une lumière chaude.
Ce projet a été publié dans le Hors Série d’Architecture à Vivre de mai 2009.